Twist S1 Max

Acumulador de 1 serpentín sobredimensionado para producción de ACS

Acumulador de 1 serpentín sobredimensionado para producción de agua caliente sanitaria con cuerpo en acero al carbono con tratamiento interno vitrificado anticorrosivo Dryglass. Está disponible en 6 modelos de 374 a 1.900 litros de capacidad. De serie incluye protección catódica y registro para inspección y limpieza.

Especialmente recomendado para instalaciones con bomba de calor.

95 °C

Temperatura máx. de trabajo

13 m2
Serpentín sobredimensionado hasta
1.900l

Acumulación hasta

DATOS TECNICOS

Capacidad sanitario l 702
Superficie de intercambio del serpentín m2 7
Contenido de agua serpentín l 60
Potencia absorbida por el primario 60/50°C kW 38
Caudal nominal serpentín primario 60/50°C m3/h 3,3
Pérdida de carga primario 60/50°C mbar 57
Potencia absorbida por el primario 80/60°C kW 189
Caudal nominal serpentín primario 80/60°C m3/h 8,1
Pérdida de carga primario 80/60°C mbar 354
Temperatura max de trabajo °C 95
Presión max de trabajo ACS bar 10
Presión max de trabajo serpentín bar 10
Pérdidas de calor W 130
Clase de eficiencia energética C

Prestaciones Agua Caliente Sanitaria

Condiciones de funcionamiento: Primario T = 80-60°C - Entrada Agua Fria T = 10°C
Caudal punta a 40°C primeros 10 minutos l/10’ 1,435
Caudal punta a 40°C primera hora l/60’ 5383
Caudal en continuo 40°C l/h 4600
Condiciones de funcionamiento: Primario T = 60-50°C - Entrada Agua Fria T = 10°C
Caudal punta a 40°C primeros 10 minutos l/10’ 949
Caudal punta a 40°C primera hora l/60’ 1742
Caudal en continuo 40°C l/h 900

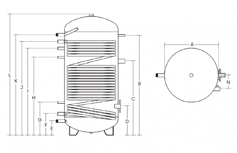
DIMENSIONES

A mm 790
B mm 1610
C mm 1120
D mm 470
E mm 240
F mm 345
G mm 565
H mm 1175
I mm 1305
J mm 1485
K mm 1620
L mm 1810
M mm -
N mm 200
Altura total con aislamiento mm 1875
Altura máxima en elevación mm 1900
Diámetro acumulador con aislamiento Ø mm 990
Brida Ø mm 180/120
Peso en vacío kg 235

CONEXIONES

Salida de agua caliente pulgadas 1 ¼
Ánodo pulgadas 1 ½
Termómetro/Sonda pulgadas 1/2
Resistencia eléctrica pulgadas 1 ½
Conexión bancada (ciega) pulgadas -
Entrada agua fría pulgadas 1 ¼
Retorno serpentín pulgadas 1 ¼
Termostato pulgadas 1/2
Salida serpentín pulgadas 1 ¼
Recirculación pulgadas 1
Salida superior agua caliente pulgadas -
Twist S1 Max Tw S1 800 Max

Manuales técnicos (1)

Certificaciones (1)

Tratamiento Dryglass

El tratamiento interno de vitrificado Dryglass se realiza según la norma DIN 4753-3 y UNE 10025 y se obtiene mediante la aplicación de un esmalte resistente al agua y al vapor.

Tras la cocción en horno a 850 °C, el esmalte no absorbe agua y no conduce iones, haciendo que el vitrificado proteja la estructura del acumulador al 99,9%. El restante 0,1% (debido a eventuales puntos expuestos) se elimina insertando en el interior un ánodo de magnesio o un ánodo electrónico de titanio que protegen de la corrosión.

Principales características

  • Acumulación en acero vitrificado “Dryglass” para ACS
  • Elevada resistencia a altas temperaturas: hasta 95 °C
  • Equipados de serie con brida de inspección
  • Protección catódica de serie, ánodo de sacrificio hasta Twist S1 500 Max y ánodo electrónico en resto de modelos
  • Elevada superficie de intercambio del serpentín
  • Conexión para resistencia eléctrica suplementaria

Cookies

Nosotros (AIC Europe B.V.) queremos instalar cookies en su aparato a fin de mejorar nuestra web (basándonos en informes y estadísticas de cómo usa nuestra página), además de mejorar nuestras actividades de márketing y la estrategia virtual del grupo AIC (basándonos en observaciones de sus visitas a nuestra página web y cómo la usa). Las cookies que usamos son las nuestras o las suministradas por Google LLC, de EEUU.

Acepta Ud. lo descrito arriba?

Para más detalles, véase: Política de cookies, Aviso legal y Política de privacidad